你有没有想过,当你拿到一张放料轴机械结构的图纸时,是不是感觉像是在面对一本天书呢?别急,今天就来手把手教你如何读懂这张神秘的图纸,让你轻松成为机械图纸的解码大师!
一、认识放料轴机械结构图纸

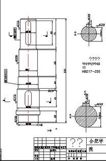
首先,你得知道,放料轴机械结构图纸,其实就是一张展示放料轴各个部件及其相互关系的图。它就像是一张地图,能帮你了解放料轴的构造和运作原理。
二、图纸的组成

一张标准的放料轴机械结构图纸通常由以下几个部分组成:
1. 标题栏:这里会标注图纸的名称、比例、绘制日期等信息。
2. 视图:包括正视图、侧视图、俯视图等,从不同角度展示放料轴的结构。
3. 尺寸标注:标注各个部件的尺寸,方便加工和装配。
4. 技术要求:对放料轴的性能、材料、加工工艺等提出要求。
5. 零件表:列出所有零件的名称、编号、数量等信息。
三、如何看懂视图

1. 正视图:这是放料轴的正面图,能让你看到各个部件的排列和连接方式。
2. 侧视图:从侧面看放料轴,可以了解其高度和宽度。
3. 俯视图:从上方看放料轴,能让你看到各个部件的布局和层次。
四、尺寸标注的解读
1. 线性尺寸:标注部件的长度、宽度、高度等。
2. 角度尺寸:标注部件之间的角度关系。
3. 公差:标注尺寸的允许偏差范围,确保加工精度。
五、技术要求的理解
1. 材料:放料轴的材质要求,如钢材、铝合金等。
2. 加工工艺:放料轴的加工方法,如车削、铣削、磨削等。
3. 性能要求:放料轴的使用性能,如承载能力、转速等。
六、零件表的查阅
1. 名称:了解每个零件的名称,便于查找和识别。
2. 编号:每个零件都有一个唯一的编号,方便管理和使用。
3. 数量:标注每个零件的数量,确保加工和装配的准确性。
七、实例分析
以一张放料轴机械结构图纸为例,我们可以看到:
- 标题栏标注了图纸名称为“放料轴机械结构图”,比例为1:1,绘制日期为2021年10月。
- 视图部分展示了放料轴的正视图、侧视图和俯视图,从不同角度展示了放料轴的结构。
- 尺寸标注部分标注了各个部件的尺寸,如轴的直径为50mm,长度为200mm。
- 技术要求部分要求放料轴采用45号钢材料,加工精度为IT6级。
- 零件表列出了所有零件的名称、编号和数量,方便查找和使用。
通过以上分析,我们可以清楚地了解放料轴的构造、尺寸、材料、加工工艺和性能要求,为后续的加工和装配提供依据。
读懂放料轴机械结构图纸并不难,只要掌握了以上方法,你就能轻松应对各种机械图纸的解读。快来试试吧,相信你一定能成为机械图纸的解码大师!